3 habitaciones (2 Dobles), Con Patio amplio.
3 habitaciones (2 Dobles), Con Patio amplio.
Venta

3 habitaciones (2 Dobles), Con Patio amplio.

209.900€
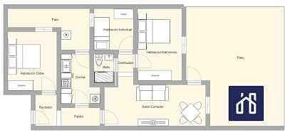
Descripción

3 habitaciones (2 Dobles), Con Patio amplio.


  • Habitación Matrimonio.
  • Habitación Doble.
  • Habitación Individual.
  • Salón-comedor con salida a Patio.
  • Cocina  con salida a patio y lavadero.
  • Baño de 3 piezas con ducha.
  • Patio de 60m2 de uso exclusivo.


Finca con acceso para discapacitados.


Barrio con todos los servicios cercanos:


-Centro medico Chafarinas y Cap Valldaura, bancos, supermercados.


-Campo de Futbol La Montañesa.


-Parada de metro L4 Via Julia, L1 Torres y Bages, L4-L3 Trinitat Nova.


-Líneas de autobuses, 132-81-N1-H2-D50-97-104-A1-A2-A4-M19-N3-E3-E7-E9-E10-E21-201-202-203-302-303-320-332-400-430-501-502.


Contacto Teléfono - Whatsapp: 93 164 12 23

General
Icono Casa
REFERENCIA
VENTA 1
Icono Tipo
TIPOLOGÍA
Piso
Icono Habitaciones
HABITACIONES
3
Icono Lavabo
BAÑOS
1
Icono Medidas
SUPERFICIE
129 m2
Localización
Ciudad
Barcelona
Distrito
Nou Barris
Barrio
La Prosperitat
Detalles
Referencia
VENTA 1
Precio
209.900€
Tipo de propiedad
Piso
Habitaciones
3
Superficie
129 m2
Calificación de emisiones
G
Baños
1
Certificado energético
G
Características
Icono Check
Ascensor
Icono Check
Cocina equipada
Icono Check
Gres / Ceramica
Icono Check
Lavadero
Icono Check
Patio
Icono Check
Terraza
Planos
Imagen de Plano
Dirección Aproximada
Icono Home
Propiedades recientes